Änderung des Flächennutzungsplanes durch Deckblatt Nr. 50 (Grieswiesen) und Aufstellung des Bebauungsplanes „Grieswiesen“
Billigungs- und Auslegungsbeschluss über den Entwurf
Förmliche Öffentlichkeitsbeteiligung (öffentliche Auslegung) gem. § 3 Abs. 2 BauGB
Der Stadtrat der Stadt Dingolfing hat in seiner Sitzung vom 22.01.2026 den Entwurf des
Deckblattes Nr. 50 (Grieswiesen) zur Änderung des Flächennutzungsplanes und des Bebauungsplanes „Grieswiesen“ gebilligt.
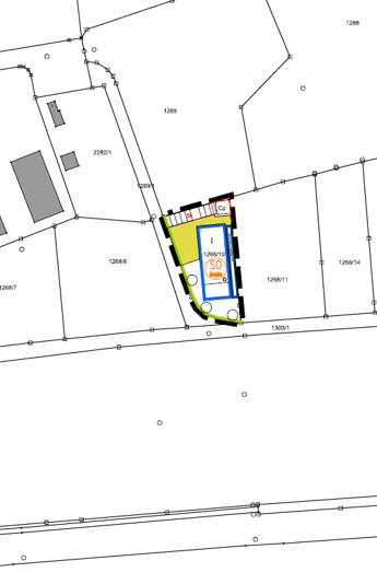
Der Geltungsbereich der Bauleitplanung erstreckt sich nördlich der Isar und südöstlich der Bauhofstraße und ist aus dem nachfolgenden Lageplan ersichtlich, der Bestandteil dieser Bekanntmachung ist.
Der Entwurf des Deckblattes Nr. 50 (Grieswiesen) zur Änderung des Flächennutzungsplanes mit Begründung in der Fassung vom 21.01.2026 und der Entwurf des Bebauungsplanes „Grieswiesen“ mit Begründung und Umweltbericht in der Fassung vom 21.01.2026 werden in der Zeit vom
02.02.2026 bis einschließlich 05.03.2026
im Stadtbauamt Dingolfing, Dr.-Josef-Hastreiter-Straße 2, 84130 Dingolfing, Zimmer 47 Bauverwaltung, während der allgemeinen Geschäftszeiten (Montag bis Freitag von 8 Uhr bis 12 Uhr und Montag, Dienstag und Donnerstag von 14 Uhr bis 16 Uhr) öffentlich ausgelegt.
Stellungnahmen können während dieser Frist in Textform oder während den Dienststunden (Montag bis Freitag von 8 Uhr bis 12 Uhr und Montag, Dienstag und Donnerstag von 14 Uhr bis 16 Uhr) zur Niederschrift abgegeben werden.
Es wird darauf hingewiesen, dass nicht fristgerecht abgegebene Stellungnahmen bei der Beschlussfassung über die Bauleitplanung unberücksichtigt bleiben können.
Die Verarbeitung personenbezogener Daten erfolgt auf der Grundlage der Art. 6 Abs. 1 Buchst. e (DSGVO) i. V. mit § 3 BauGB und dem BayDSG. Sofern Sie Ihre Stellungnahme ohne Absenderangaben abgeben, erhalten Sie keine Mitteilung über das Ergebnis mit Prüfung. Weitere Informationen entnehmen Sie bitte dem Formblatt „Datenschutzrechtliche Informationspflichten im Bauleitplanverfahren“ das ebenfalls öffentlich ausliegt.
In Bezug auf die Änderung des Flächennutzungsplanes wird darauf hingewiesen, dass eine Vereinigung im Sinne des § 4 Abs. 3 S. 1 Nr. 2 UmwRG (Umwelt-Rechtsbehelfsgesetz) in einem Rechtsbehelfsverfahren nach § 7 Abs. 2 UmwRG gemäß § 7 Abs. 3 S. 1 UmwRG mit allen Einwendungen ausgeschlossen ist, die sie im Rahmen der Auslegungsfrist nicht oder nicht rechtzeitig geltend gemacht hat, aber hätte geltend machen können (§ 3 Abs. 3 BauGB).
Begründung DB-Nr. 50 Bebauungsplan "Grieswiesen"


